Projet précédent    
Projet suivant

 

Projet précédent    
Projet suivant

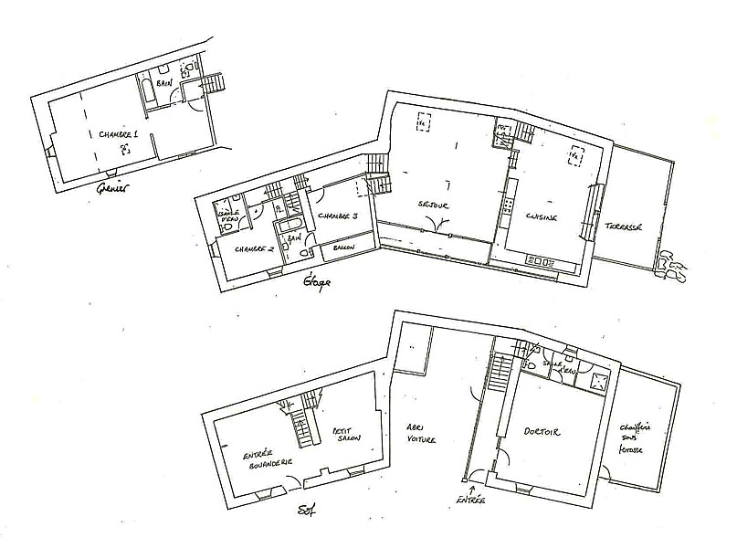
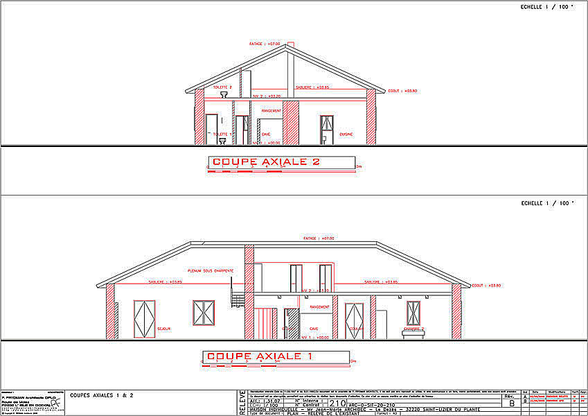
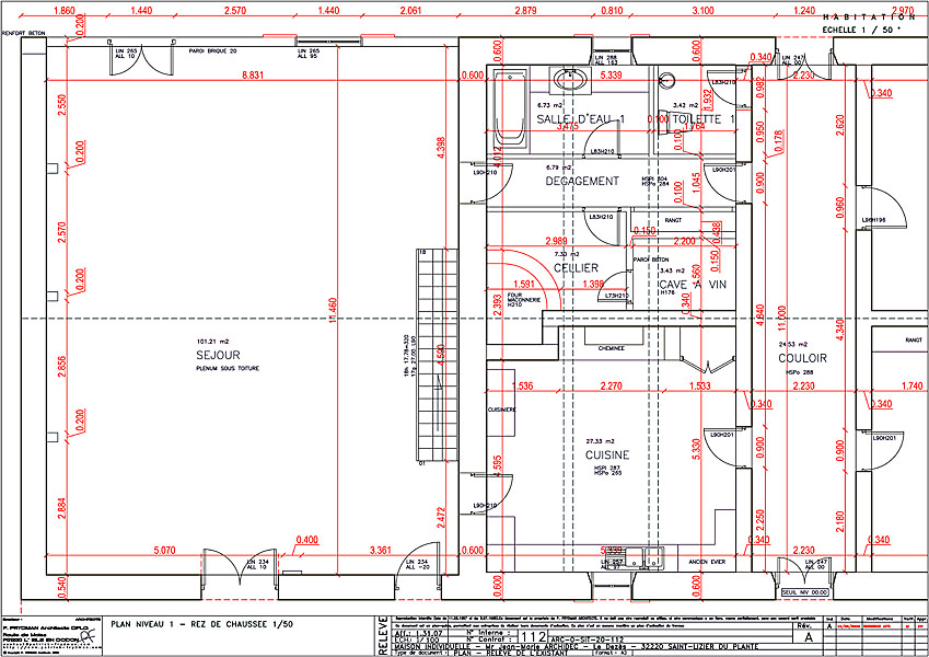
Saint Lizier du Planté - Gers-32 :

Rénovations de maisons traditionnelles, avec Kris Misselbrook

 


 

Esparron - Haute-Garonne -31 :


 

 


 

 


 

 


 

 



 

 

 

 


 


 

 

 

 

 

 

haut de la page
Sauveterre de Comminges - Haute-Garonne -31 :